Стелаж оконный. Сборно-разборный.
Стелаж оконный (полка оконная – см. чертеж: Сборка стелажа) предназначена для выращивания рассады в весенний период, а также для содержания растений (цветов, кактусов и пр.) на подоконнике. Ширина подоконника, при этом, должна быть не менее 250 мм. В связи с тем, что подоконники имеют различное исполнение по углу наклона (от 0 до 50), возможно, возникнет необходимость подкладывания прокладок под ближние ножки. Для надежной фиксации на подоконнике (на случай не санкционированного визита кошки, например) возможно крепление стелажа в верхней части при помощи лески к оконной раме (над полкой).
Как дальнейшее развитие возможна установка снизу полок (кроме первой) ламп дневного света (U – образных), что, кроме освещения, решает ещё и проблему подогрева (!) – весьма важную для рассады. По опыту могу сказать, что полки с лампами подогреваются до температуры 27…30оС. При выключенных лампах (ночь) – 15…20оС – что тоже важно.
Ну, а на зиму возможно изготовление мини оранжереи. Для чего шьётся чехол из армированного полиэтилена с системой клапанов для обеспечения циркуляции воздуха и регулирования температуры ( выкройка есть ).
Комплектность конструкции.
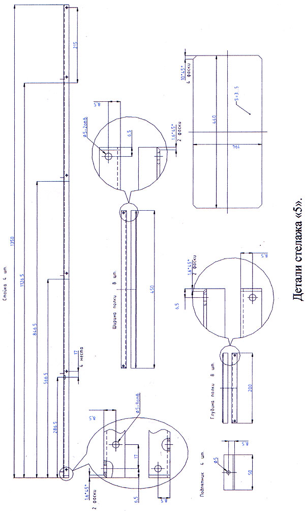
В конструкцию входят ( по позициям (1…6)) (см. чертеж деталей):
1. Стойки – 4 шт.(2 левые + 2 правые – это важно при разметке отверстий – зеркально).
2. Ширина полки – 12 шт.
3. Глубина полки – 10 шт.
4. Подпятник – 4 шт.
5. Полка – 5 шт.
6. Крепёж: Винт М4х12 – 44 шт.; Гайка М4 – 44 шт.; Шайба «гровер» ф4 – 44 шт.
Все конструктивные элементы каркаса изготавливаются из алюминиевого уголка 15х15. Уголок продается в розницу длинной 2 м (ориентировочная стоимость 50…80 руб./штука). Для стелажа необходимо 7 (семь) уголков длиной по 2 м (т.е. суммарная длина 14 м). При раскрое уголков необходимо руководствоваться следующими указаниями, т.к. это позволит вам избежать ошибок и лишних затрат.
Раскрой уголков по позициям (_):
4 уголка кроятся одинаково: 2000х4 = 4х(1(1350) + 2(450) +3(200));
2 уголка кроятся: 2000х2 = 2х(2(450)х4 + 3(200));
1 уголок кроится: 2000=3(200)х4 + 4(50)х4 + (остаток 1 м).
В скобках указаны длины каждой позиции. В результате раскроя должно получиться указанное выше количество конструктивных элементов (по позициям, проверьте перед началом !!!). После раскроя сложите одинаковые детали друг с другом и, поставив их на торец, сравните их длины. Они не должны отличаться больше чем на 1 мм, иначе могут возникнуть проблемы при сборке. При необходимости, доработайте самые выступающие напильником.
После раскроя уголков намечаются и выполняются отверстия во всех деталях (учтите, что в 2-х из 4 стоек отверстия выполняются зеркально). Диаметр всех отверстий 5 мм. Не забудьте снять заусенцы после сверления отверстий, и указанные фаски на уголках.
Сами полки (поз. 5) выполняются из фанеры толщиной 3…5 мм. В последствии сами полки я оклеил самоклеящимися обоями. Возможен вариант исполнения из оргстекла, тогда они будут ещё и прозрачными.
Сборка в произвольной последовательности. Рекомендуется окончательную затяжку гаек производить после полной сборки стелажа.
Желаю удачи.
Петрович.
P.S. При возникновении непоняток – пишите: mspetrovich@rambler.ru ; mspetrovich@mail.ru , постараюсь помочь.
Стелаж оконный (полка оконная – см. чертеж: Сборка стелажа) предназначена для выращивания рассады в весенний период, а также для содержания растений (цветов, кактусов и пр.) на подоконнике. Ширина подоконника, при этом, должна быть не менее 250 мм. В связи с тем, что подоконники имеют различное исполнение по углу наклона (от 0 до 50), возможно, возникнет необходимость подкладывания прокладок под ближние ножки. Для надежной фиксации на подоконнике (на случай не санкционированного визита кошки, например) возможно крепление стелажа в верхней части при помощи лески к оконной раме (над полкой).
Как дальнейшее развитие возможна установка снизу полок (кроме первой) ламп дневного света (U – образных), что, кроме освещения, решает ещё и проблему подогрева (!) – весьма важную для рассады. По опыту могу сказать, что полки с лампами подогреваются до температуры 27…30оС. При выключенных лампах (ночь) – 15…20оС – что тоже важно.
Ну, а на зиму возможно изготовление мини оранжереи. Для чего шьётся чехол из армированного полиэтилена с системой клапанов для обеспечения циркуляции воздуха и регулирования температуры ( выкройка есть ).
Комплектность конструкции.
В конструкцию входят ( по позициям (1…6)) (см. чертеж деталей):
1. Стойки – 4 шт.(2 левые + 2 правые – это важно при разметке отверстий – зеркально).
2. Ширина полки – 12 шт.
3. Глубина полки – 10 шт.
4. Подпятник – 4 шт.
5. Полка – 5 шт.
6. Крепёж: Винт М4х12 – 44 шт.; Гайка М4 – 44 шт.; Шайба «гровер» ф4 – 44 шт.
Все конструктивные элементы каркаса изготавливаются из алюминиевого уголка 15х15. Уголок продается в розницу длинной 2 м (ориентировочная стоимость 50…80 руб./штука). Для стелажа необходимо 7 (семь) уголков длиной по 2 м (т.е. суммарная длина 14 м). При раскрое уголков необходимо руководствоваться следующими указаниями, т.к. это позволит вам избежать ошибок и лишних затрат.
Раскрой уголков по позициям (_):
4 уголка кроятся одинаково: 2000х4 = 4х(1(1350) + 2(450) +3(200));
2 уголка кроятся: 2000х2 = 2х(2(450)х4 + 3(200));
1 уголок кроится: 2000=3(200)х4 + 4(50)х4 + (остаток 1 м).
В скобках указаны длины каждой позиции. В результате раскроя должно получиться указанное выше количество конструктивных элементов (по позициям, проверьте перед началом !!!). После раскроя сложите одинаковые детали друг с другом и, поставив их на торец, сравните их длины. Они не должны отличаться больше чем на 1 мм, иначе могут возникнуть проблемы при сборке. При необходимости, доработайте самые выступающие напильником.
После раскроя уголков намечаются и выполняются отверстия во всех деталях (учтите, что в 2-х из 4 стоек отверстия выполняются зеркально). Диаметр всех отверстий 5 мм. Не забудьте снять заусенцы после сверления отверстий, и указанные фаски на уголках.
Сами полки (поз. 5) выполняются из фанеры толщиной 3…5 мм. В последствии сами полки я оклеил самоклеящимися обоями. Возможен вариант исполнения из оргстекла, тогда они будут ещё и прозрачными.
Сборка в произвольной последовательности. Рекомендуется окончательную затяжку гаек производить после полной сборки стелажа.
Желаю удачи.
Петрович.
P.S. При возникновении непоняток – пишите: mspetrovich@rambler.ru ; mspetrovich@mail.ru , постараюсь помочь.
